
Services
Measurements
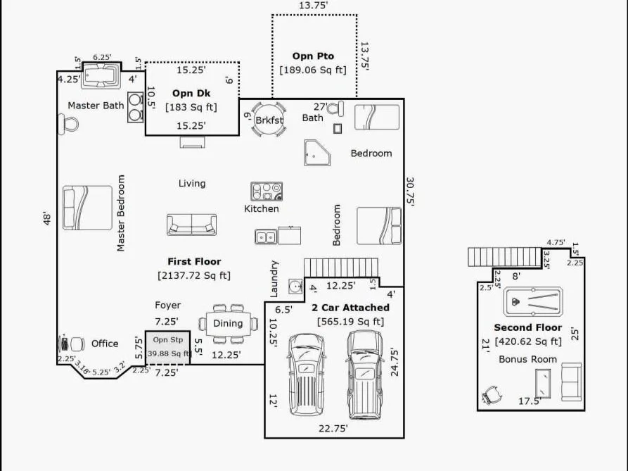
Digital Floorplan sketch
Includes room dimensions with labels and total square footage
Starting at $200
Appraisals
Full General Purpose Form Appraisal
Full floor plan sketch with room labels
Starting at $350
“Seeing the floor plan laid out made everything so much easier”
— Olivia, Laser Appraisal Client